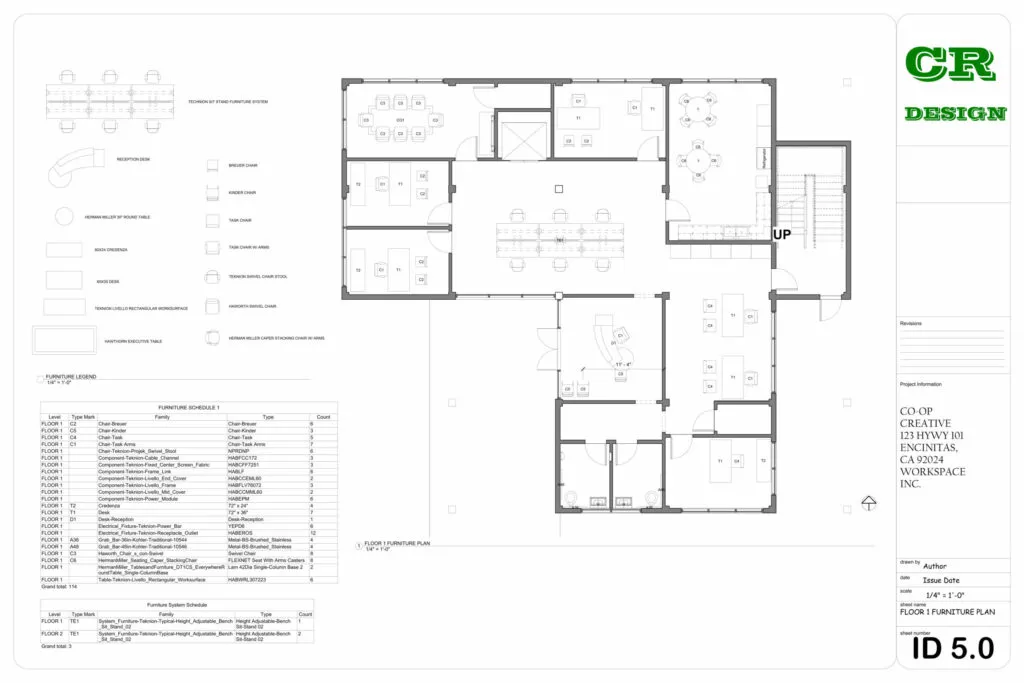
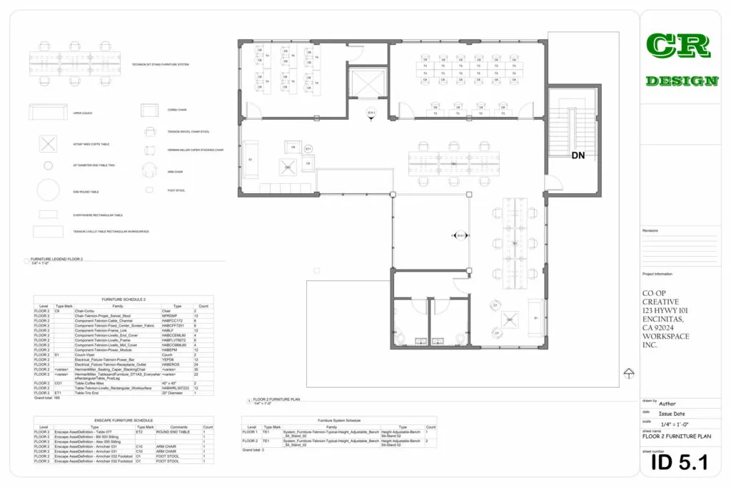
This commercial interior design project presents a contemporary workspace tailored for Co-Op Creative, located at 123 HWY 101, Encinitas, CA. The design emphasizes functionality, collaboration, and modern aesthetics through an open-plan layout, clean lines, and the strategic use of natural light.














